
UPDATED:
Key Details
Property Type Single Family Home
Sub Type Single Family Residence
Listing Status Active
Purchase Type For Sale
Square Footage 1,743 sqft
Price per Sqft $186
Subdivision Walnut Reserve
MLS Listing ID 4293478
Bedrooms 3
Full Baths 2
Half Baths 1
Construction Status Under Construction
HOA Fees $71/mo
HOA Y/N 1
Abv Grd Liv Area 1,743
Year Built 2025
Lot Size 5,227 Sqft
Acres 0.12
Property Sub-Type Single Family Residence
Property Description
Location
State NC
County Catawba
Zoning RES
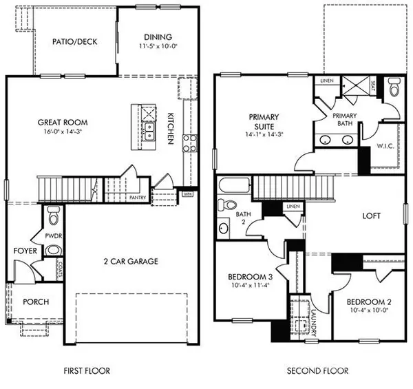
Rooms
Main Level Bathroom-Half
Main Level Dining Area
Upper Level Bathroom-Full
Main Level Kitchen
Main Level Great Room
Upper Level Bathroom-Full
Upper Level Bedroom(s)
Upper Level Bedroom(s)
Upper Level Loft
Upper Level Primary Bedroom
Upper Level Laundry
Interior
Interior Features Attic Stairs Pulldown, Cable Prewire, Kitchen Island, Open Floorplan, Pantry, Walk-In Closet(s)
Heating ENERGY STAR Qualified Equipment
Cooling ENERGY STAR Qualified Equipment
Flooring Carpet, Tile, Vinyl
Fireplace false
Appliance Dishwasher, Disposal, Microwave, Oven, Refrigerator with Ice Maker, Washer/Dryer
Laundry Upper Level
Exterior
Garage Spaces 2.0
Community Features Playground
Roof Type Architectural Shingle
Street Surface Concrete,Paved
Porch Patio
Garage true
Building
Dwelling Type Site Built
Foundation Slab
Builder Name Meritage Homes
Sewer Public Sewer
Water City
Level or Stories Two
Structure Type Vinyl
New Construction true
Construction Status Under Construction
Schools
Elementary Schools St. Stephens
Middle Schools Newton Conover
High Schools St. Stephens
Others
HOA Name Keuster
Senior Community false
Restrictions Architectural Review
Acceptable Financing Cash, Conventional, FHA, USDA Loan, VA Loan
Listing Terms Cash, Conventional, FHA, USDA Loan, VA Loan
Special Listing Condition None



